Mimari projeler, bir yapının yerleşim planı, iç mekan tasarımı ve dış cephe düzenlemeleri gibi tüm tasarım aşamalarını içerir. Bu projeler, estetik, işlevsellik ve müşteri ihtiyaçlarını göz önünde bulundurarak hazırlanır. Mimari projeler, yapılacak binanın görsel kimliğini ve iç mekan düzenlemelerini belirler.
Peyzaj projeleri, dış mekan düzenlemeleri, bahçe tasarımı ve çevresel iyileştirmeleri içerir. Bu projeler, doğa ile uyumlu, estetik ve sürdürülebilir alanlar yaratmayı amaçlar. Peyzaj projeleri; bitki örtüsü, yürüyüş yolları, su havuzları, yeşil alanlar gibi unsurları kapsar ve dış mekanın işlevselliğini artırır.
- Bahçe tasarımı ve bitkilendirme
- Yürüyüş yolları, oturma alanları ve teraslar
- Sert zemin uygulamaları (karo, taş, bordür, ahşap deck vs.)
- Aydınlatma sistemleri (bahçe aydınlatmaları, led sistemler vb.)
- Süs havuzu, şelale, fıskiye gibi su öğeleri
- Otopark düzenlemeleri ve giriş yolları
- Sulama sistemleri (otomatik sulama altyapıları)
- Çevre duvarı ve çit sistemleri
- Estetik bir görünüm sağlar, yapının mimarisini öne çıkarır,
- Doğayla uyumlu yaşam alanları oluşturarak kullanıcıya huzur verir,
- Sosyal kullanım alanları (kamelya, oturma alanı vb.) ile fonksiyonellik katar,
- Evin ya da iş yerinin değerini artırır,
- Erozyon, drenaj sorunları ve zemin kaymaları gibi çevresel problemlere çözüm sunar.
Çevre düzenleme projelerinde sadece güzellik değil, denge, doğallık ve sürdürülebilirlik ilkelerini benimsiyoruz.
Mekanik projeler, bir yapının ısıtma, soğutma, su temini, drenaj ve havalandırma sistemlerinin tasarımını içerir. Bu projeler, binanın konforlu ve enerji verimli olmasını sağlamak amacıyla hazırlanır. Ayrıca, yangın güvenliği ve enerji verimliliği gibi unsurlar da mekanik projeler içinde ele alınır.
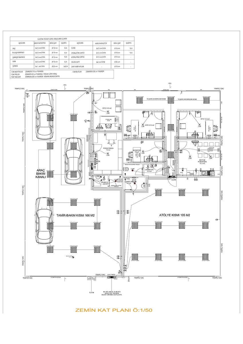
Elektrik projeleri, bir yapının elektrik altyapısının, aydınlatma sistemlerinin ve enerji dağıtımının planlamasını içerir. Bu projeler, güvenli ve verimli bir elektrik kullanımını sağlamak için hazırlanır. Elektrik projeleri, elektrikli ekipmanların yerleşimi, enerji tasarrufu, acil aydınlatma ve güvenlik sistemleri gibi unsurları kapsar.
Makine projeleri, özellikle büyük projeler veya sanayi yapıları için gereklidir. Bu projeler, makine ekipmanlarının yerleşimi, tesisatın çalışması ve yapının mekanik işleyişi ile ilgili detayları içerir. Fabrika, depo gibi alanlarda makinelerin düzgün çalışabilmesi için gerekli altyapıyı oluşturur.
Bu projeler, inşaat sürecindeki farklı gereksinimlere göre uzmanlık ve mühendislik bilgisi gerektirir. Her bir proje türü, yapı güvenliği, işlevsellik ve estetik açısından belirli bir uzmanlık gerektiren detaylarla hazırlanır.
